본문바로가기

GVS 효과

  • 아파트형 공장
  • 오피스텔
  • 호텔 및 전시장&연구시설
  • 지하주차장 및 SH공사 아파트 RC라멘조 대비

경제성 분석 (규모 : 지상 19층, 지하 2층)

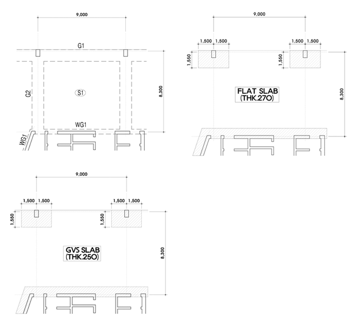
오피스텔
오피스텔 설계도 FLAT SLAB(THK270), GVS SLAB(THK 250)
Wide Girder
82,000원/m² (100%)
Flat Slab
78,000원/m² (95.1%)
GVS
76,000원/m² (92.7%)

기존 적용현장 공사비 중 10% 절감